top of page
Create Your First Project
Start adding your projects to your portfolio. Click on "Manage Projects" to get started
Voorontwerp woongebouw met commerciële ruimte
Soort project
meergezinswoning met commerciële ruimte
Datum
ontwerp: 2022
Locatie
Eilandje Antwerpen
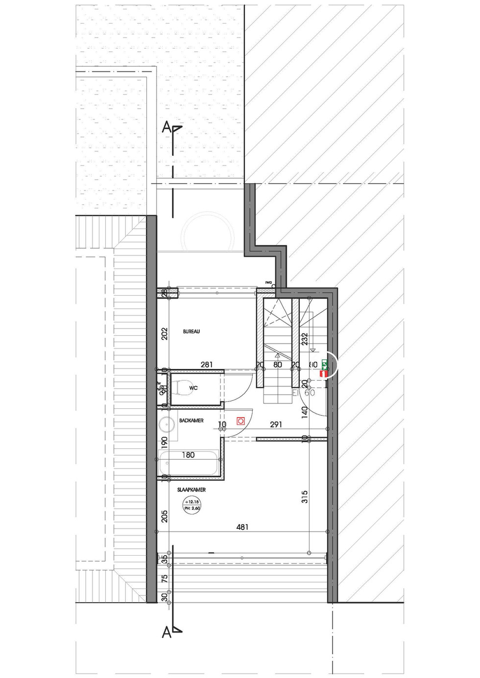
Ontwerp van een gebouw voor een klein perceel op het Eilandje (Antwerpen); in opdracht van AS architecten.
Na aftrok van de doorgang naar de fietsenberging in de kelder en de circulatie naar de boven gelegen wooneenheden, wordt over het volledige perceel een commerciële ruimte voorzien op het gelijkvloers.
Daarboven zijn er 3 studio's en op de top zit een duplexwoning met een interessante buitenruimte en het mooiste uitzicht.




















bottom of page

