top of page
Create Your First Project
Start adding your projects to your portfolio. Click on "Manage Projects" to get started
Wedstrijdontwerp uitbreiding Warande Turnhout
Soort project
Cultureel centrum
Datum
ontwerp 1999
Locatie
Turnhout
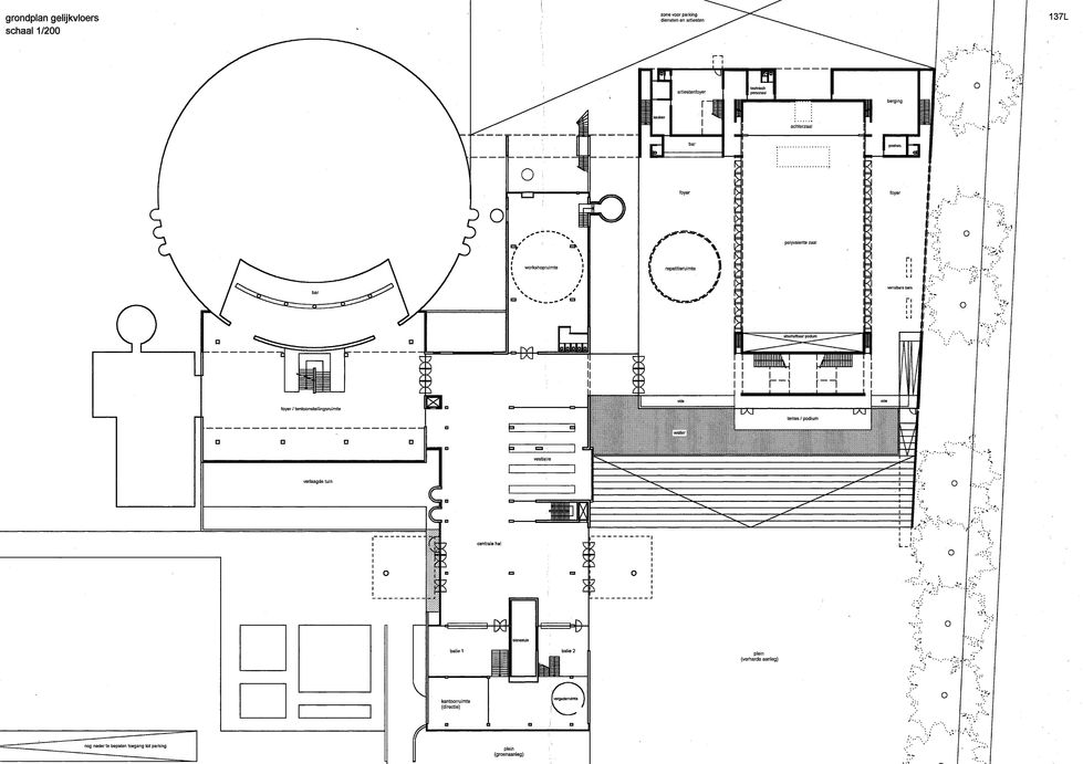
Op de vraag om een tweede podiumgebouw te voorzien, wordt een geheel ontworpen met veel extra mogelijkheden voor voorstellingen op allerlei plaatsen. De meest opvallende is het naar buiten doorgetrokken podium waarbij een verdiepte zone van de buitenruimte trapsgewijs overbrugt wordt en meteen als tribune dienst doet. Ook het grote witte gevelvlak boven het podium kan dienst doen als projectiescherm voor film, voetbaluitzendingen, programma van de Warande, ....










bottom of page

